虎尾全新交屋大面寬別墅

128026.46萬/坪

台中七期惠文加盟店(玖益不動產經紀有限公司)

0423811277

 預約看屋  線上提問

虎尾全新交屋大面寬別墅

6313542

0423811277

買屋 / 雲林縣 / 虎尾鎮 /
虎尾全新交屋大面寬別墅
志崗圓砌

物件詳細資料

點閱次數:8次

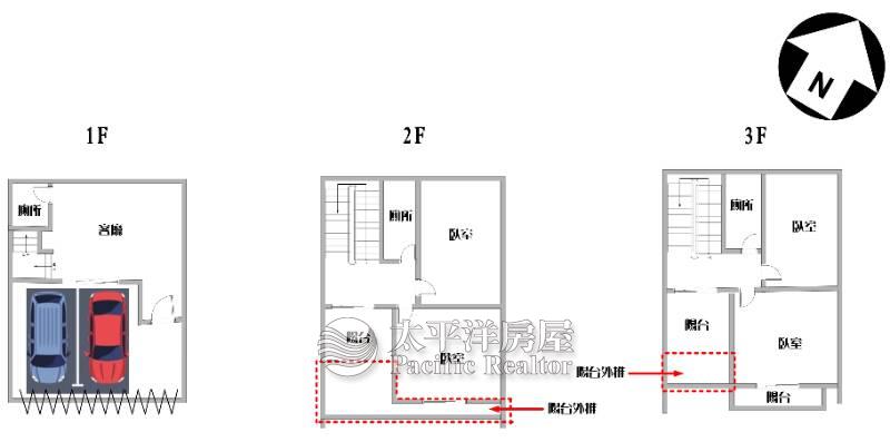
  • 房屋資訊

    外牆建材
    高級石材
    車位/備註
    庭院車位 庭院車位
    入門朝向
    座西北 朝東南
    使用分區
    鄉村區-乙種建築用地
    現況
    空屋
    面臨路寬
    5 米
    建築結構
    鋼筋混凝土造
  • 謄本資料

    主建物
    43.85 坪
    附屬建物
    4.53 坪
    公共設施
    車位坪
    地下室
    地坪
    24.69 坪
    謄本主要用途
    住宅、停車空間
    *小數點取二位第三位無條件捨去

周邊資訊

市場

虎尾第一市場、 7-11、萊爾富

鄰近學校(2公里內)

縣立中正國小,縣立虎尾國中

公園

高地公園

商圈

其他

特色說明

  • 近學校
  • 近市場
  • 近商圈
  • 近公園
  • 1、大面寬,車道空間寬敞,可停雙車。 2、交通便利,距離雲林高鐵約 3.5 公里,交通接軌高鐵路網。 3、鬧中取靜,周邊商圈採買便利,生活機能佳。 4,商圈完整,附近有 7-11、萊爾富等超商,虎尾市區也只需 5 分鐘。

地圖/街景

實價登錄