朝陽科大全棟37房大學舍

430039.69萬/坪

台中七期惠文加盟店(玖益不動產經紀有限公司)

0423811277

 預約看屋  線上提問

朝陽科大全棟37房大學舍

6240570

0423811277

買屋 / 台中市 / 霧峰區 /
朝陽科大全棟37房大學舍

物件詳細資料

點閱次數:376次

  • 房屋資訊

    外牆建材
    方塊磚
    車位/備註
    入門朝向
    座北 朝南
    社區朝向
    朝南
    陽台朝向
    朝南
    使用分區
    住宅區
    現況
    出租
    面臨路寬
    12 米
    建築結構
    鋼筋混凝土造
  • 謄本資料

    主建物
    100.02 坪
    附屬建物
    8.32 坪
    公共設施
    車位坪
    地下室
    地坪
    59.29 坪
    謄本主要用途
    住房.梯間
    *小數點取二位第三位無條件捨去

周邊資訊

公園

霧峰林宅、霧峰林宅

商圈

其他

特色說明

  • 近商圈
  • 近公園
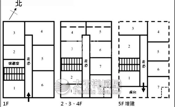
  • 1.全棟五樓,37間套房 2.滿租,月收20.35萬,年收244.2萬 4.快樂數錢,坐以待幣

地圖/街景

實價登錄