七期公園1F孝親別墅

638066.89萬/坪

七期惠中加盟店(億營開發股份有限公司)

04-22591288

 預約看屋  線上提問

七期公園1F孝親別墅

5959851

0422591288

買屋 / 台中市 / 南屯區 /
七期公園1F孝親別墅
  • 相似物件推薦

物件詳細資料

點閱次數:142次

  • 房屋資訊

    外牆建材
    高級石材
    車位/備註
    庭院車位 庭院車庫
    入門朝向
    座西 朝東
    使用分區
    住1-4
    現況
    自住(用)
    面臨路寬
    10 米
    建築結構
    鋼筋混凝土造
  • 謄本資料

    主建物
    73.18 坪
    附屬建物
    22.2 坪
    公共設施
    車位坪
    地下室
    地坪
    48.43 坪
    謄本主要用途
    梯間、住房、停車空間、水塔
    *小數點取二位第三位無條件捨去

周邊資訊

捷運‧公車站牌(1公里內)

市場

家樂福.全聯福利中心

鄰近學校(2公里內)

市立惠文國小,市立惠文國中

公園

惠來公園

商圈

七南

特色說明

  • 近學校
  • 近市場
  • 近商圈
  • 近公園
  • 近醫療機構
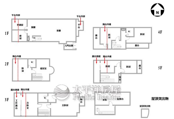
  • 1、分區使用:住1-4可登 2、私有獨立臨路車庫,基地臨接10米路方便出入 3、產權獨立,三面採光免管理費 4、惠來公園步行約100公尺可達 5、步行約300公尺可達惠文高中、國中、小學,12年完全學區 6、步行約450公尺可達家樂福旗艦店、全聯福利社及水安宮捷運站 7、1F有孝親房,一手屋主起家厝

地圖/街景

地圖街景建置中

實價登錄