花蓮市美侖透天

218026.68萬/坪

台中興大健康加盟店(仲友開發有限公司)

04-22654000

 預約看屋  線上提問

花蓮市美侖透天

5970867

0422654000

買屋 / 花蓮縣 / 花蓮市 /
花蓮市美侖透天

物件詳細資料

點閱次數:52次

  • 房屋資訊

    外牆建材
    二丁掛
    車位/備註
    庭院車位 庭院車位
    入門朝向
    座東北 朝西南
    使用分區
    住宅區
    現況
    空屋
    面臨路寬
    20 米
    建築結構
    鋼筋混凝土造
  • 謄本資料

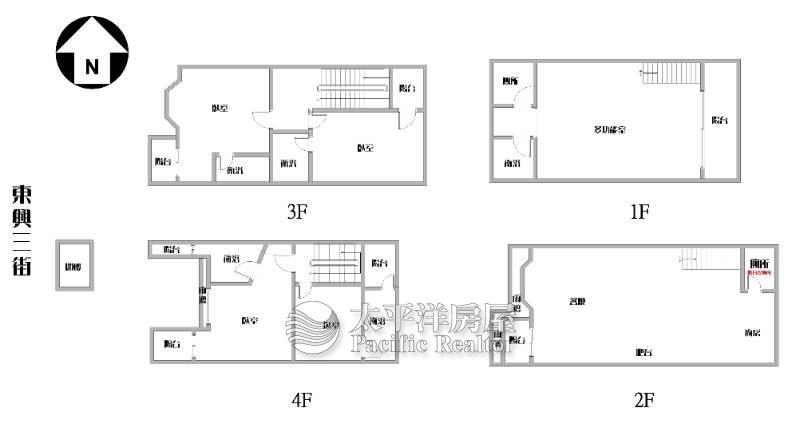
    主建物
    71.47 坪
    附屬建物
    10.23 坪
    公共設施
    車位坪
    地下室
    地坪
    35.39 坪
    謄本主要用途
    住家用
    *小數點取二位第三位無條件捨去

周邊資訊

市場

美侖市場

鄰近學校(2公里內)

縣立明恥國小,縣立美崙國中

公園

林園公園

商圈

其他

特色說明

  • 近學校
  • 近市場
  • 近商圈
  • 近公園
  • 近醫療機構
  • 1、地點佳,近美侖大飯店,美侖國中 2、大地坪透天,可做民宿 3、使用空間大

地圖/街景

實價登錄